415和435型测距仪(DME)
一、业务
“铭远航空”供应成套设备,包括备件供应,安装调试,飞行校验,板件修理,工厂培训,售后服务,技术咨询,备件支持,现场故障抢修和周期巡检等业务。
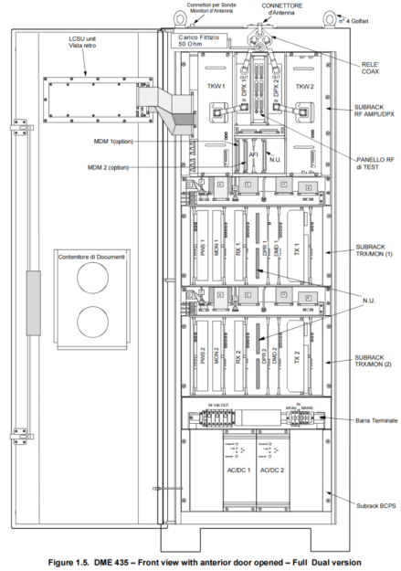
DME 435机柜,如下图。

二、业绩
“铭远航空”在中国于田机场,克拉玛依机场,奇台机场,延安机场,三沙机场,巴里坤机场等30多个机场,完成了DVOR432,DME415,DME435设备安装调试,飞行校验,现场培训,故障修理,周期巡检,系统优化等业务。
三、案例
2020年9月,“铭远航空”在中国新疆省于田机场,完成了DVOR432,DME435设备安装调试,如下图。
DVOR432天线系统 | DVOR432台站 |
| ![]() |
四、模拟机平台
1、“铭远航空”已建立了成套DME415/DME435设备模拟机平台,承接模拟机改造,板件上机测试,板件修理,实操培训,备件支持和技术支持等。
2、改造后的DME415/DME435模拟机平台,如下图。

五、板件清单
序号 | 板件英文名称 | 板件中文名称 | 简 称 | 序号(PN) |
一、Transmitter Unit,发射机单元 | ||||
1 | Digital Processor Unit DPR | 数字处理板 | DPR | 483700014A |
2 | Digital Modulator Unit DMD | 数字调制板 | DMD | 483700015B |
3 | 100W Transmitter Unit TX | DME415功放板 | TX100 | 483700017D |
4 | 100W Transmitter Unit TX | DME435功放板 | TX100 | 474910016U |
5 | 1kW Transmitter Unit(435 only ) | 1AKW功放板 | 1AKW | 474910019F |
6 | Receiving And Processing Modulation Board | 接收处理调制板 | RPM | 62054043 |
7 | Duplexer Unit DPX | 双工器 | DPX | 474910014S |
8 | Coaxial Relay Unit | 继电器 | CRU | 62054420 |
9 | Receiver Unit RX | 接收板 | RX | 474910012Y |
10 | Associated Facility Interface AFI | 识别接口板 | AFI | 474930032Y |
11 | TAI Dummy | 负载接口板 | TAI | 474930112V |
二、Monitor Unit,监控器单元 | ||||
1 | Monitor Unit MON | 监控板 | MON | 474910013Z |
三、Controller Unit,控制单元 | ||||
1 | CPU Control & Status Unit CSB 188 | 本地控制板 | CSB | 411700126E |
2 | Status Indicator Board | 状态指示板 | INC | 474729907M |
四、Remote Controller Unit,遥控器单元 | ||||
1 | Remote Monitoring Unit,RCSI 447-8 | 8路远程监控单元 (遥控器) | RCSI 447-8 | 472238-0302 |
2 | Tower Repeater Unit,SI 447-8 | 8路塔台重显单元 | SI 447-8 | 002238-0700 |
3 | Local Control Status Unit, LCSU MP386 | 本地控制板 | LCSU | 488700001 |
4 | Indication/Commands-8 Module | 状态显示板 | INC | 474930065H |
5 | Power Module | 电源模块 | PK30 | 136-010992J |
6 | Party Line Modem LGM 1200 | 接口模块(Modem) | LGM 1200 | 488700013N |
7 | Party Line Modem LGM 28.8 | 接口模块(Modem) | LGM 28.8 | / |
五、Power Supply Unit,电源单元 | ||||
1 | AC/DC-Converter 700W Module | 交流直流电源稳压模块 | ACC-54 | 5834120102 |
2 | +5V+/-15V DC/DC Converter | 直流转直流稳压模块 | PWS | 62054392 |
3 | Battery Supervisor Module | 电池辅助模块 | BSM | 474910008M |
4 | Battery Control Management System | 电源控制管理系统 | BCPS | 598700009 |
六、Antenna Unit,天线单元 | ||||
1 | DME Antenna | DME天线 | DME-ANT | / |
六、机柜板件分布图

下一篇:LDB-102型测距仪(DME)