ILS410 and ILS420 Instrument Landing System(ILS)
一、Business
“Bright Aviation” supplies complete sets of equipment, including spare parts supply, installation and commissioning, flight check, panel repair, factory training, after-sales service, technical consultation, spare parts support, on-site fault repair, periodic inspection and other businesses.
ILS410 and ILS420 cabinet, as shown in the figure.

二、Performance
1. “Bright Aviation” has completed ILS410 equipment, fault repair, periodic inspection, system optimization and other businesses at more than 30 airports in China, including Hohhot Airport, Arshan airport, Xilinhot airport, Jiayuguan airport, Liping airport, etc.
2. “Bright Aviation” has completed ILS420 equipment, installation and commissioning, flight check, fault repair, periodic inspection and other businesses at more than 10 airports in China, including Hotan airport, Changde airport, Fuyang airport, Huizhou airport, etc.
三、Case
1. In May 2021, “Bright Aviation” in Fuyang Airport, Anhui Province, China, carried out the ILS420 Localizer antenna system upgrade and transformation project.
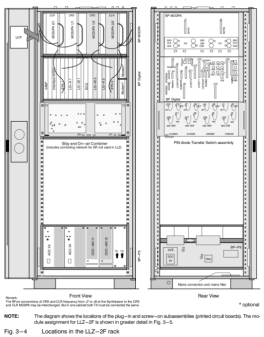
ILS420 cabinet,as shown in the figure.

2. ILS420 LLZ antenna system, as shown in the figure.

三、Simulator Platform
“Bright Aviation” has established ILS410 and ILS420 equipment simulator platforms, undertaking simulator modifications for various airports, panel testing on aircraft, spare parts support, and technical support.
1、Rebuilt LLZ411 and GP412 simulator platform,as shown in the figure.

2、Rebuilt LLZ421 simulator platform,as shown in the figure.

五、ILS410 Equipment Board List
No. | Board English Name | Board Chinese Name | Abbreviation | Serial Number |
一、Transmitter Unit,发射机单元 | ||||
1 | Modulator Signal Generator - Control,MSG-C | 调制信号控制板 | MSG-C | 8313527200 |
2 | Modulator Signal Generator - Sign,MSG-S | 调制信号产生板 | MSG-S | 8313527100 |
3 | Modulator 110,MOD-110 | 调制功放板 | MOD-110 | 8313526101 |
4 | Modulator 110P,100W,MOD-110P | 调制功放板 | MOD-110P | 8313526200 |
5 | Synthesizer,LLZ-2F,SYN-L2 | 频率合成板 | SYN-L2 | 8313428202 |
6 | Control Coupler,LLZ-2F,CCP-L2 | 控制耦合板 | CCP-L2 | 8313429200 |
7 | RF-Duplexer LLZ,RFD-L | 航向继电器切换单元 | RFD-L | 5834100800 |
8 | Modulator 330,MOD-330 | 调制功放板 | MOD-330 | 8313426300 |
9 | Modulator 330P,MOD-330P | 调制功放板 | MOD-330P | 8313426400 |
10 | Synthesizer GP-2F,SYN-G2 | 下滑合成板 | SYN-G2 | 8313428502 |
11 | Control Coupler GP-2F, CCP-G2 | 下滑控制耦合板 | CCP-G2 | 8313429500 |
12 | RF-Duplexer 1-GP,RFD1-G | 下滑单频射频切换单元 | RFD1-G | 5834100840 |
13 | RF-Duplexer 2 GP,RFD2-G | 下滑双频射频切换单元 | RFD2-G | 5834100810 |
二、Monitor Unit,监控器单元 | ||||
1 | Monitor Signal Processor LLZ, MSP-L | 航向监控板 | MSP-L2 | 8313422101 |
2 | Monitor Divider Switch LLZ-2F, MDS-L23 | 航向监控分配开关板 | MDS-L23 | 8313420101 |
3 | Monitor Interface Adapter,MIA-L | 航向监控接口分配板 | MIA-L | 8313423600 |
4 | Monitor Signal Processor GP, MSP-G | 下滑监控板 | MSP-G2 | 8313422201 |
5 | Monitor Divider Switch GP-2F, MDS-G23 | 下滑监控分配开关 | MDS-G23 | 8313420300 |
6 | Monitor Interface Adapter,MIA-G | 下滑监控接口分配板 | MIA-G | 8313423700 |
三、Controller Unit,控制单元 | ||||
1 | Control & Selector Logic,CSL | 控制选择逻辑板 | CSL | 8313523100 |
2 | Local Control Status Unit LCSU, MP386 | 本地控制板 | LCSU | 488700001 |
四、Remote Controller Unit,遥控器单元 | ||||
1 | Remote Monitoring Unit,RCSI 447-8 | 8路远程监控单元 (遥控器) | RCSI 447-8 | 472238-0302 |
2 | Tower Repeater Unit,SI 447-8 | 8路塔台重显单元 | SI 447-8 | 002238-0700 |
3 | Local Control Status Unit, LCSU MP386 | 本地控制板 | LCSU | 488700001 |
4 | Indication/Commands-8 Module | 状态显示板 | INC | 474930065H |
5 | Power Module | 电源模块 | PK30 | 136-010992J |
6 | Party Line Modem LGM 1200 | 接口模块(Modem) | LGM 1200 | 488700013N |
7 | Party Line Modem LGM 28.8 | 接口模块(Modem) | LGM 28.8 | / |
五、Power Supply Unit,电源单元 | ||||
1 | AC/DC-Converter 700W module | 交流直流电源稳压模块 | ACC-54 | 5834120102 |
2 | DC-Supply Multivolt | 航向多路直流稳压模块 | DCC-MV | 8313412300 |
3 | DC-Supply Multivolt | 下滑多路直流稳压模块 | DCC-MV | 8313812400 |
4 | DC-Converter,5V | 5V直流稳压模块 | DCC-5C | 8313412100 |
5 | Power Management PMM (LLZ) | 航向电源管理单元 | PMM-LLZ | 8313430501 |
6 | Power Management PMM(GP) | 下滑电源管理单元 | PMM-GP | 8313430601 |
六、Antenna Unit,天线单元 | ||||
1 | LLZ Antenna Element | 航向天线振子 | LLZ-ANT | 448112-0001 |
2 | GP Antenna Element | 下滑天线振子 | GP-ANT | 448116-0001 |
3 | LLZ Near-F Monitor Antenna | 航向近场监控天线 | LLZ-NF-ANT | 9038473 |
4 | GP Near-F Monitor Antenna | 下滑近场监控天线 | GP-NF-ANT | 9038477 |
六、ILS420 Equipment Board List
No. | Board English Name | Board Chinese Name | Abbreviation | Serial Number |
一、Transmitter Unit,发射机单元 | ||||
1 | LLZ/GP Audio Generator | 音频信号产生板 | LG−A | 120570−0004 |
2 | Synthesizer | 合成板 | SYN | 120496−0004 |
3 | Modulator Power Amplifier LLZ | 航向功放板 | MOD-PA | 120588-0002 |
4 | PIN−diode Transfer Switch | 射频继电器转换单元 | RFD-L/G | 120622−0001 |
5 | Modulator Power Amplifier GP | 下滑航道功放板 | MOD-PA | 120589−0001 |
6 | Modulator Power Amplifier GP | 下滑余隙功放板 | MOD-PA | 120589−0002 |
7 | Transmitter motherboard | 发射机母板 | TX-MOB | 120602-0001 |
8 | Monitor motherboard | 监控器母板 | MON-MOB | 120598-0002 |
二、Monitor Unit,监控器单元 | ||||
1 | LLZ/GP Monitor Processor | 监控器处理板 | LG−M | 120570−0004 |
2 | Monitor Interface | 接口板 | INTFC | 120628−0001 |
3 | Stby and On−Air Combiner | 主备机射频信号混合板(旧版本) | SOAC | 120621−0001 |
4 | Stby and On−Air Combiner | 主备机射频信号混合板(新版本) | SOAC | 120769-0001 |
三、Controller Unit,控制单元 | ||||
1 | Executive Control Unit | 执行控制板 | ECU | 120571−0004 |
2 | Local Control Panel | 本地控制板 | LCP | 83135 21006 |
四、Remote Controller Unit,遥控器单元 | ||||
1 | Remote Monitoring Unit,RCSI 447-8 | 8路远程监控单元 (遥控器) | RCSI 447-8 | 472238-0302 |
2 | Tower Repeater Unit,SI 447-8 | 8路塔台重显单元 | SI 447-8 | 002238-0700 |
3 | Local Control Status Unit, LCSU MP386 | 本地控制板 | LCSU | 488700001 |
4 | Indication/Commands-8 Module | 状态显示板 | INC | 474930065H |
5 | Power Module | 电源模块 | PK30 | 136-010992J |
6 | Party Line Modem LGM 1200 | 接口模块(Modem) | LGM 1200 | 488700013N |
7 | Party Line Modem LGM 28.8 | 接口模块(Modem) | LGM 28.8 | / |
五、Power Supply Unit,电源单元 | ||||
1 | AC/DC-Converter 700W module | 交流直流电源稳压模块 | ACC-54 | 5834120102 |
2 | Low Voltage Sensor | 低电压转换板 | LVS | 83138 30511 |
3 | DC−Converter 5V (on LVS board) | 5V直流稳压模块 | DCC-5 | / |
4 | DC−Converter Multivolt | 多路直流稳压模块 | DCC−MV | 83138 12400 |
六、Antenna Unit,天线单元 | ||||
1 | LLZ 14-Distribution Network | 航向14单元射频分配单元 | ADU | 120354-0003 |
2 | LLZ 14-Monitor Assy | 航向14单元监控混合单元 | MCU | 120631-0001 |
3 | Power Adder (GP−2F active) | 下滑功率分配单元 | PAD−A | 120634−0001 |
4 | Power Adder (GP−2F standard) | 下滑功率分配单元 | PAD−S | 120609−0001 |
5 | GP Phase Shifter | 下滑移相器 | Z1,Z3 | 120623−0001 |
6 | LLZ Antenna Element | 航向天线振子 | LLZ-ANT | 448112-0001 |
7 | GP Antenna Element | 下滑天线振子 | GP-ANT | 448116-0001 |
8 | LLZ Near-F Monitor Antenna | 航向近场监控天线 | LLZ-NF-ANT | 9038473 |
9 | GP Near-F Monitor Antenna | 下滑近场监控天线 | GP-NF-ANT | 9038477 |
七、ILS410 Equipment Cabinet Board Distribution Diagram
LLZ411 Cabinet | GP412 Cabinet |
| ![]() |
八、ILS420 Equipment Cabinet Board Distribution Diagram
LLZ421 Cabinet | GP422 Cabinet |
| ![]() |